
Sleek Renovation
Full Home Renovation
project brief: modernize a 1990s era townhome
site location: san francisco, california
category: professional work - designer - butler armsden architects
collab: in collaboration with trisha snyder
phases: design development, pricing set, construction set, interior design
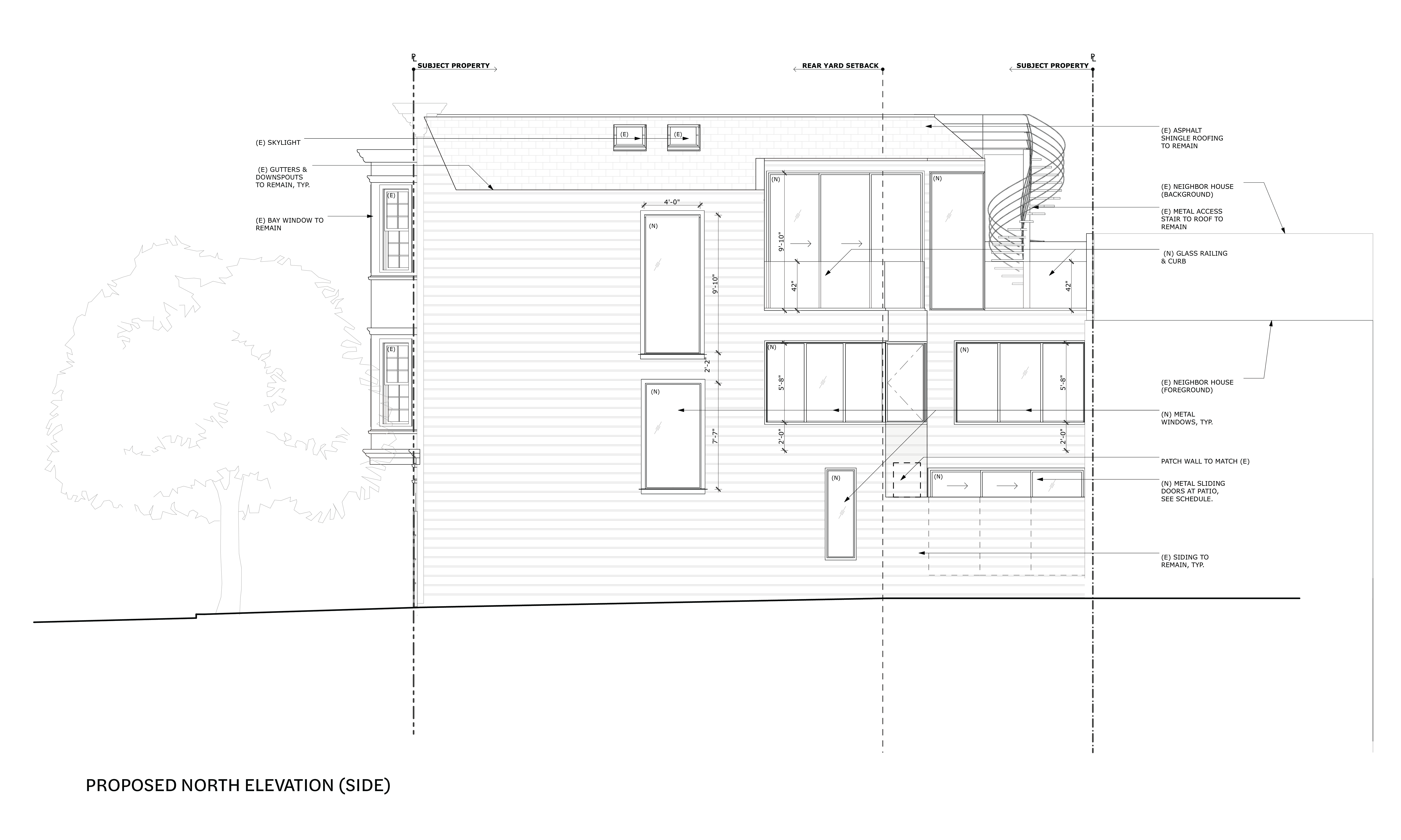
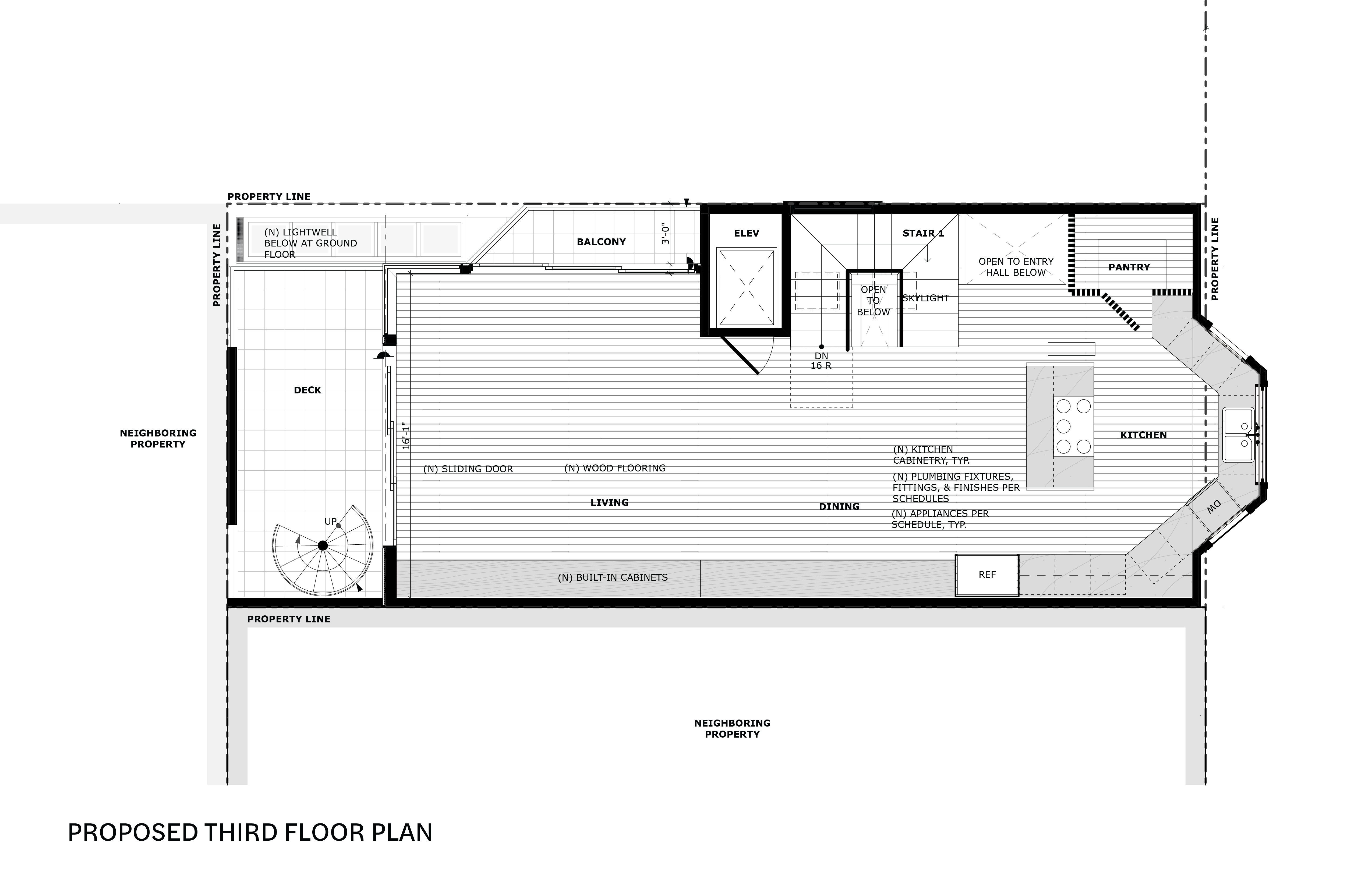
Clients in an townhome with limited light and cramped quarters sought to update, simplify, and brighten their home for their growing family.

The top floor, once jumbled and segmented, now houses the kitchen, pantry, living room, dining room and outdoor deck in one continuous space, capped by floor to ceiling glass looking out on a breathtaking view of the bay. ![]()
![]()



