West Coast Cape
New Construction
project brief: west coast family home with lots of east coast charm
site location: belvedere, california
category: professional work - designer - butler armsden architects
collab: in collaboration with reba jones
phases: design development, planning set, permit acquisition
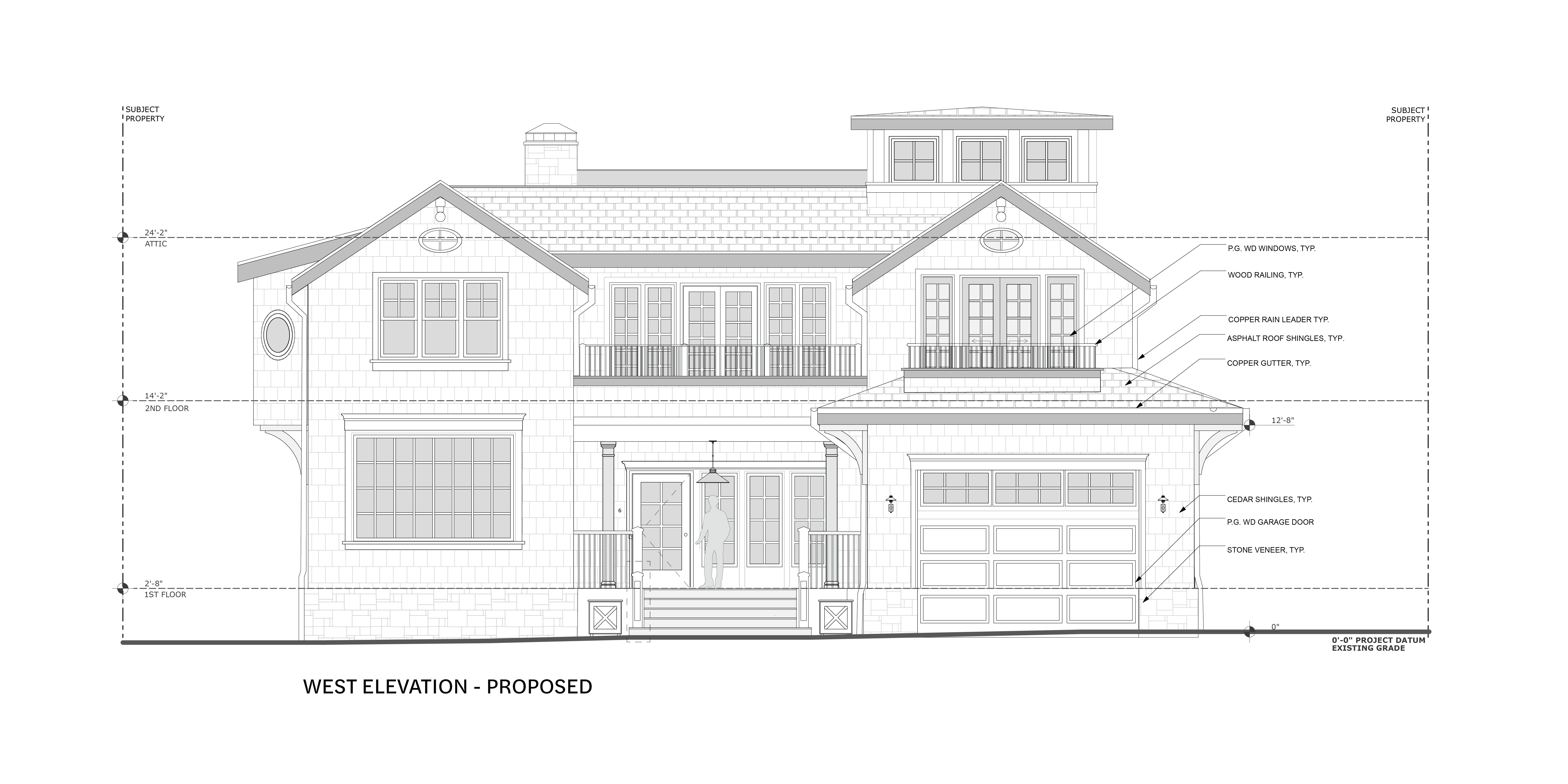
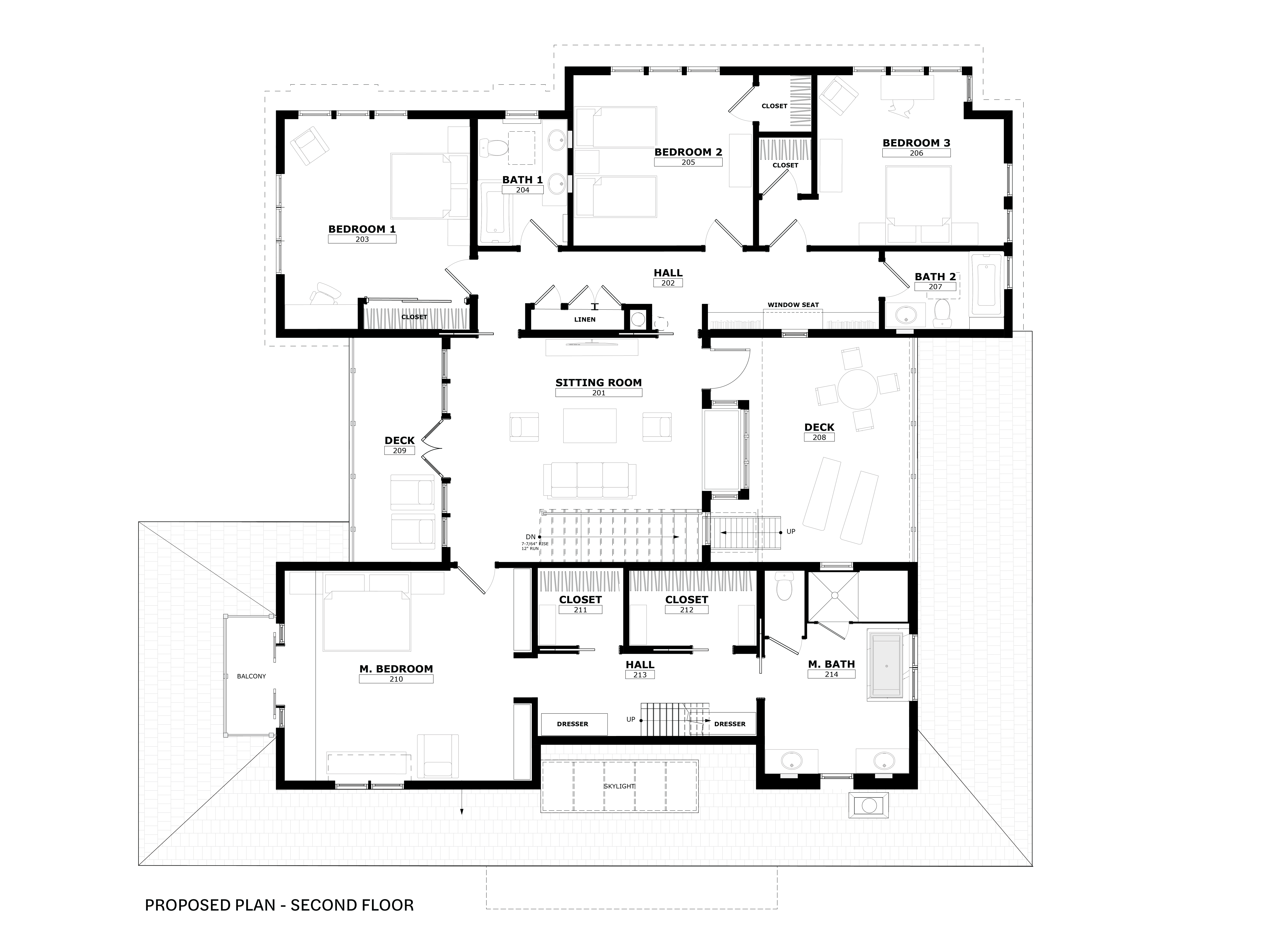
A growing family with eastern roots sought to build a intricate, layered and refined yet relaxed home on the west coast. Our team relished in realizing the whimsical and functional balance of this bespoke home.
![]()
![]()
![]()
![]()
Every room was thoughtfully designed to have a layered, heritaged character, as though this new home had been in the family for a century, added on to and enriched by many generations. The resulting design combines several of the best of both worlds - the charm of a legacy home (where everything works), the heritage of the east (with the climate of the west), the layered look of the inherited (designed for modern functionality).





